• Looking for a new home? Go To Joe!

Compare Listings


LOADING

Part 1 Plan 3r-10841 Turner Street Saugeen Shores, Ontario N0H 2L0

$289,900

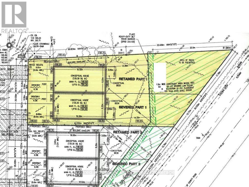
One of two unique building opportunities in Southampton's desirable north end. This fully serviced vacant lot is primed for a pair of semi-detached homes, just a short stroll from Lake Huron access. Only minutes from the grocery store, golf course, boat launch, the scenic Saugeen River, and Southampton's main beach, and charming downtown core not far away. The 67 ft frontage along Turner Street offers depths of 210 ft (north boundary) and 150 ft (south boundary). The proposed building envelope supports two efficient semi-detached residences with an overall footprint of 1456sqft each, while a thoughtful tree retention plan along the rear preserves mature greenery for privacy and natural appeal. Water, sewer, natural gas, and hydro are at the roadside with development fees already paid-streamlining the process for your build. Ideal for builders, investors, or families: build then live in one and rent/sell the other, build and sell both, or create a multi-generational retreat. The adjacent lot to the South is also for sale and ready for another pair of semi's. HST is in addition to the price. (id:49218)

Property Details

MLS® Number X12547474
Property Type Vacant Land
Community Name Saugeen Shores
Amenities Near By Hospital, Schools
Community Features School Bus
Features Irregular Lot Size, Partially Cleared, Level

Building

Utility Water Municipal Water

Land

Access Type Year-round Access
Acreage No
Land Amenities Hospital, Schools
Sewer Sanitary Sewer
Size Depth 151 Ft
Size Frontage 67 Ft
Size Irregular 67 X 151 Ft ; Lot Depth Is Shorter South Lot Line
Size Total Text 67 X 151 Ft ; Lot Depth Is Shorter South Lot Line|under 1/2 Acre
Zoning Description R1-93

Utilities

Cable Available
Electricity Available
Sewer Installed

https://www.realtor.ca/real-estate/29106264/part-1-plan-3r-10841-turner-street-saugeen-shores-saugeen-shores

Interested?

Contact us for more information


Generating Captcha

Dan Graham
Salesperson

(226) 668-3008

Wilfred Mcintee & Co Limited
181 High St
Southampton, Ontario N0H 2L0

(519) 797-5500
www.mcintee.ca/

Your Favourites

 

No Favourites Found