• Looking for a new home? Go To Joe!

Compare Listings


LOADING

665 Watson Street South Bruce Peninsula, Ontario N0H 2T0

$299,000

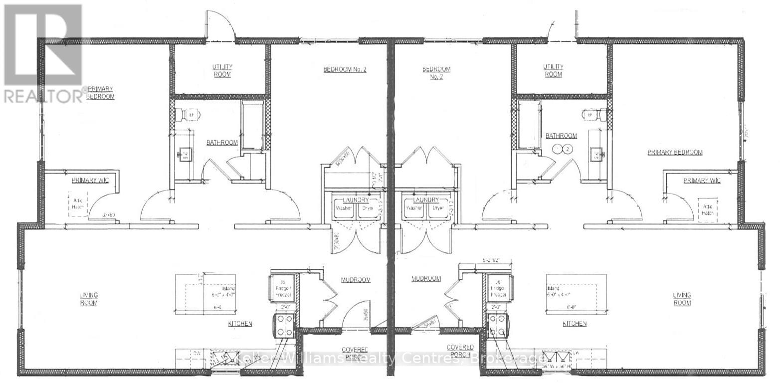
Your next investment is already underway with this vacant lot in Wiarton, where permits, studies, and grading plans are approved and in place for a duplex build. This rare turnkey development site with trusses on site and foundation prepped ready for concrete presents an excellent opportunity for builders, investors, or owner-occupiers seeking a streamlined path to construction. With key approvals already secured, you can move forward without the usual delays. For added flexibility, the sellers are open to building, offering a convenient start-to-finish option. Set in a family-friendly neighbourhood, the property has an existing shed and is located near schools and parks, making it ideal for long-term tenants or families looking for quality housing. You'll also enjoy close proximity to downtown Wiarton for everyday amenities and just a short drive to Sauble Beach, adding lifestyle appeal for future occupants. Whether you're building to invest, rent, or live, 665 Watson Street offers a rare chance to secure a ready-to-go duplex site in a growing Bruce Peninsula community. Take advantage of this turnkey opportunity-contact us today to explore the potential of this Wiarton build lot. (id:49218)

Property Details

MLS® Number X12678536
Property Type Vacant Land
Community Name South Bruce Peninsula
Amenities Near By Marina, Place Of Worship, Schools, Park
Community Features School Bus
Structure Shed

Building

Land

Acreage No
Land Amenities Marina, Place Of Worship, Schools, Park
Size Depth 203 Ft ,11 In
Size Frontage 50 Ft ,1 In
Size Irregular 50.16 X 203.94 Ft
Size Total Text 50.16 X 203.94 Ft|under 1/2 Acre
Zoning Description R3

Utilities

Cable Available
Electricity Available
Sewer Available

https://www.realtor.ca/real-estate/29231664/665-watson-street-south-bruce-peninsula-south-bruce-peninsula

Interested?

Contact us for more information


Generating Captcha

Adam Lesperance
Broker

(519) 378-7171

Keller Williams Realty Centres
201 9th St W
Owen Sound, Ontario N4K 3N7

(877) 895-5972
(905) 895-3030
kwrealtycentres.com/

Your Favourites

 

No Favourites Found