• Looking for a new home? Go To Joe!

Compare Listings


LOADING

656 Devonshire Road Saugeen Shores, Ontario N0H 2C3

4 Bedroom 3 Bathroom 1100 - 1500 sqft
Raised Bungalow Fireplace Central Air Conditioning, Air Exchanger Forced Air

$899,900

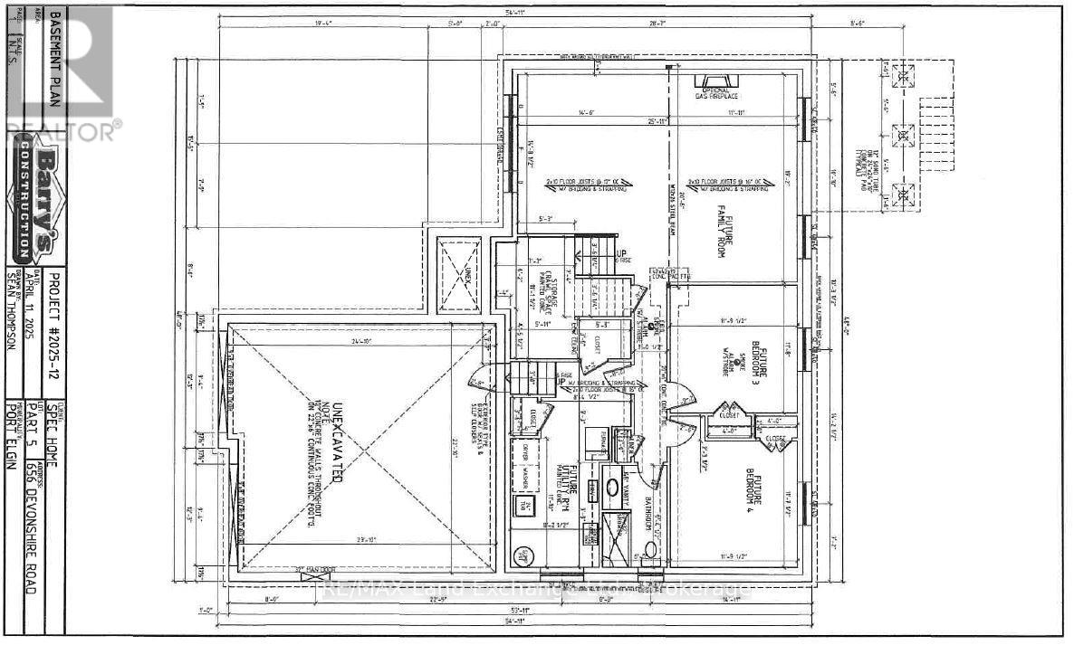
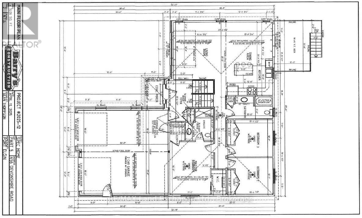
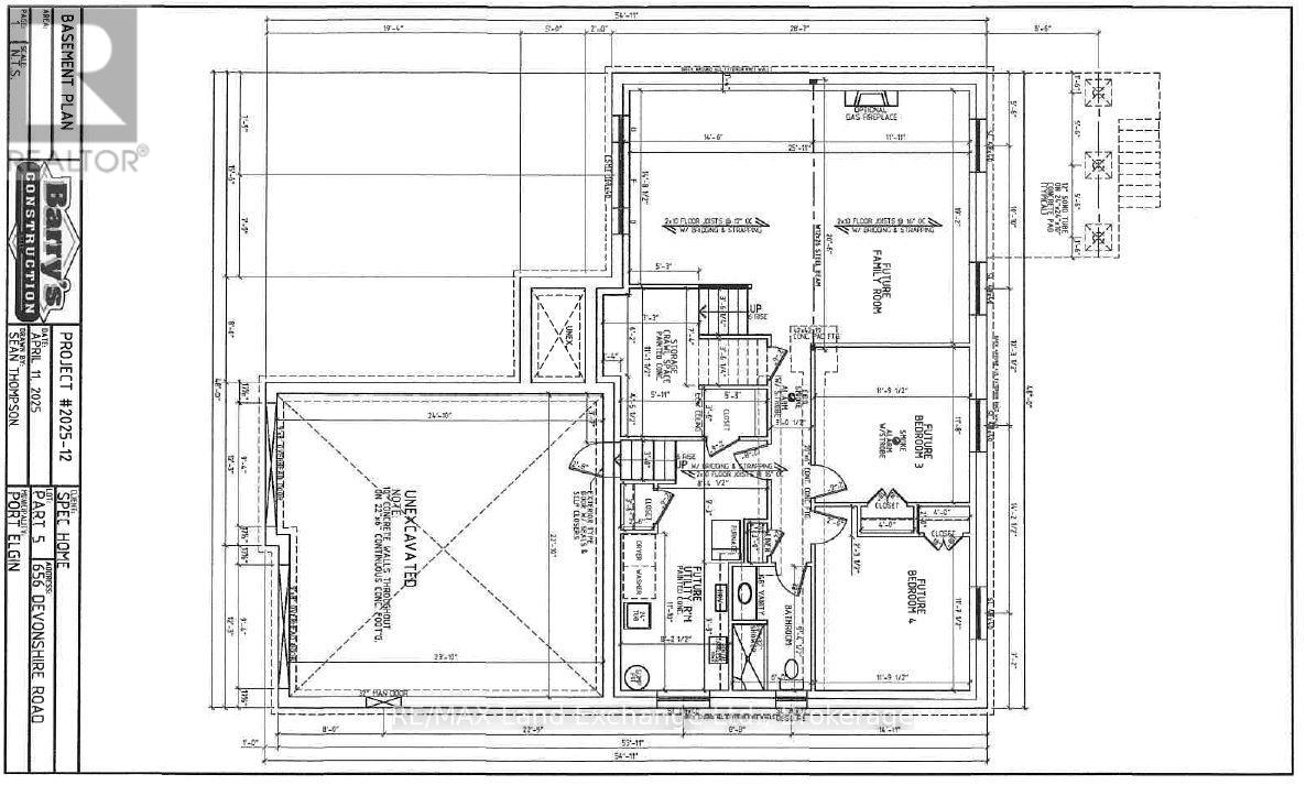
On a lot measuring 56ft x 182 ft, this 1406 sqft, 3 + 2 bedroom, 3 bath home is under construction. The location is 656 Devonshire Road in Port Elgin just a short walk to the rail trail, Food Basics, and the new Saugeen Shores Aquatic Center. The main floor is open concept with 9ft ceilings, vinyl plank and ceramic flooring, walkout to a 10 x 14 deck, Quartz kitchen counter tops and spacious entrance foyer. The basement will be finished and include a family room with gas fireplace, 2 bedrooms, 3pc bath, laundry / utility room with access to the 2 car garage measuring 22'8 x 24'. The yard will be completely sodded and a concrete drive will be in place. HST is included in the list price provided the Buyer qualifies for the rebate and assigns it to the Builder on closing. Prices subject to change without notice. (id:49218)

Property Details

MLS® Number X12110957
Property Type Single Family
Community Name Saugeen Shores
Community Features Community Centre
Equipment Type Water Heater, Water Heater - Tankless
Features Flat Site, Sump Pump
Parking Space Total 6
Rental Equipment Type Water Heater, Water Heater - Tankless

Building

Bathroom Total 3
Bedrooms Above Ground 3
Bedrooms Below Ground 1
Bedrooms Total 4
Amenities Fireplace(s)
Appliances Garage Door Opener Remote(s), Water Heater - Tankless, Garage Door Opener
Architectural Style Raised Bungalow
Basement Development Finished
Basement Features Walk-up
Basement Type N/a (finished), N/a
Construction Style Attachment Detached
Cooling Type Central Air Conditioning, Air Exchanger
Exterior Finish Brick, Vinyl Siding
Fireplace Present Yes
Fireplace Total 1
Flooring Type Tile, Hardwood
Foundation Type Poured Concrete
Heating Fuel Natural Gas
Heating Type Forced Air
Stories Total 1
Size Interior 1100 - 1500 Sqft
Type House
Utility Water Municipal Water

Parking

Attached Garage
Garage

Land

Acreage No
Sewer Sanitary Sewer
Size Depth 182 Ft
Size Frontage 56 Ft
Size Irregular 56 X 182 Ft
Size Total Text 56 X 182 Ft
Zoning Description R1

Rooms

Level Type Dimensions
Basement Laundry Room 3.61 m x 2.49 m
Basement Family Room 7.9 m x 4.57 m
Basement Bedroom 4 3.56 m x 3.58 m
Basement Bedroom 5 3.53 m x 3.58 m
Main Level Foyer 3.35 m x 1.57 m
Main Level Living Room 4.37 m x 7.78 m
Main Level Dining Room 3.89 m x 3.05 m
Main Level Kitchen 3.89 m x 3.05 m
Main Level Primary Bedroom 4.42 m x 3.38 m
Main Level Bedroom 2 3.15 m x 3.07 m
Main Level Bedroom 3 3.15 m x 3.07 m

Utilities

Cable Available
Electricity Installed
Sewer Installed

https://www.realtor.ca/real-estate/28230935/656-devonshire-road-saugeen-shores-saugeen-shores

Interested?

Contact us for more information


Generating Captcha

Debbie Duplantis
Broker

(519) 389-7385
www.realestateportelgin.com/

RE/MAX Land Exchange Ltd.
645 Goderich St
Port Elgin, Ontario N0H 2C0

(519) 389-4600
(519) 389-4618
www.remaxlandexchange.ca/

Hayden Duplantis
Salesperson

(226) 930-0792

RE/MAX Land Exchange Ltd.
645 Goderich St
Port Elgin, Ontario N0H 2C0

(519) 389-4600
(519) 389-4618
www.remaxlandexchange.ca/

Your Favourites

 

No Favourites Found