• Looking for a new home? Go To Joe!

Compare Listings


LOADING

649 Lloyd Street Saugeen Shores, Ontario N0H 2C1

3 Bedroom 2 Bathroom 700 - 1100 sqft
Bungalow Fireplace Baseboard Heaters Lawn Sprinkler

$455,000

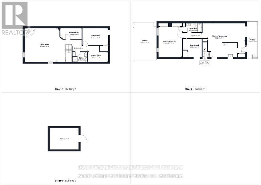
Don't miss out on this amazing opportunity! This immaculately maintained semi-detached home boasts a spacious 1,900 sq. ft. of living space spread over two levels, making it an ideal option for first-time buyers, retirees, or as an income property. Located just a short stroll away from Walmart, the new LCBO, and a host of other local amenities, this property is perfectly situated. The home sits on a generous corner lot, providing an expansive double-wide concrete laneway, ample green space, and both front and back decks. Step inside the front door to discover a practical layout on the main floor, featuring a bright and airy living room, a sleek and tidy galley kitchen complete with a coffee bar for storage, two bedrooms, and a four-piece bathroom. The finished lower level offers endless possibilities, currently consisting of a spacious rec room, a third bedroom, a three-piece bathroom, laundry facilities, and additional storage. With a separate entrance, this lower level could easily be converted into a separate unit, thanks to the R2 zoning. The home features a combination of ductless heating and cooling, a natural gas fireplace, and baseboard heating, with a new roof installed in 2018. The sand-point well system ensures that the lawn is always looking its best, while the detached shed offers additional storage space. This turn-key home is the one you've been waiting for! (id:49218)

Property Details

MLS® Number X12461236
Property Type Single Family
Community Name Saugeen Shores
Features Flat Site
Parking Space Total 4
Structure Deck, Porch, Workshop

Building

Bathroom Total 2
Bedrooms Above Ground 2
Bedrooms Below Ground 1
Bedrooms Total 3
Age 31 To 50 Years
Amenities Fireplace(s)
Appliances Water Heater, All, Window Coverings
Architectural Style Bungalow
Basement Development Finished
Basement Type Full (finished)
Construction Style Attachment Semi-detached
Exterior Finish Aluminum Siding, Stone
Fireplace Present Yes
Fireplace Total 1
Foundation Type Poured Concrete
Heating Fuel Natural Gas
Heating Type Baseboard Heaters
Stories Total 1
Size Interior 700 - 1100 Sqft
Type House
Utility Water Municipal Water

Parking

No Garage

Land

Acreage No
Landscape Features Lawn Sprinkler
Sewer Sanitary Sewer
Size Depth 114 Ft ,4 In
Size Frontage 41 Ft ,6 In
Size Irregular 41.5 X 114.4 Ft
Size Total Text 41.5 X 114.4 Ft|under 1/2 Acre
Zoning Description R2

Utilities

Cable Installed
Electricity Installed
Wireless Available

https://www.realtor.ca/real-estate/28986958/649-lloyd-street-saugeen-shores-saugeen-shores

Interested?

Contact us for more information


Generating Captcha

Krista Norrish
Broker

(519) 832-3080
www.kristanorrish.com/
www.facebook.com/kristanorrish
ca.linkedin.com/in/kristanorrish/

Royal LePage Exchange Realty Co.
680 Goderich St
Port Elgin, Ontario N0G 2C0

(519) 832-3080
www.royallepageexchange.com/

Cory Hamilton
Broker

(519) 357-8575
coryhamilton.ca/
facebook.com/cory.hamilton.9250

Royal LePage Exchange Realty Co.
777 Queen St
Kincardine, Ontario N2Z 2Z4

(519) 396-3396
www.royallepageexchange.com/

Your Favourites

 

No Favourites Found