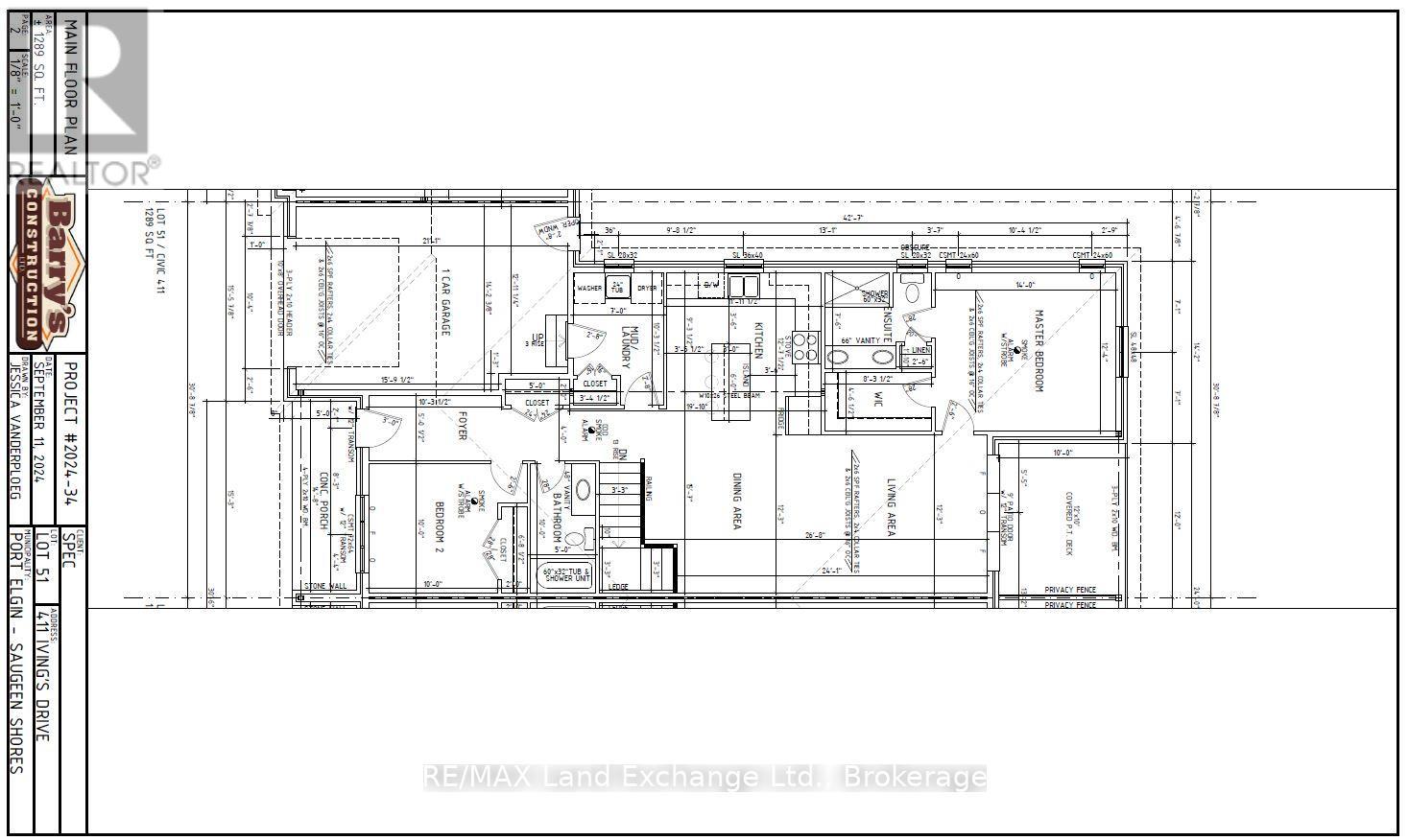
Under construction, this 1289 sqft freehold bungalow townhome at 411 Ivings Dr, Port Elgin is expected to be move-in ready in approximately 90 days. The main floor offers a bright open-concept layout featuring a spacious kitchen, dining area, and living room with walkout to a 12' x 10' covered deck. Includes 2 bedrooms, 2 full bathrooms, and a laundry room with inside entry to garage.The fully finished basement adds 2 more bedrooms, a full bathroom, and a large family room, offering nearly double the living space. Features Include: Quartz kitchen countertops, Hardwood & ceramic flooring throughout main floor, 9' ceilings, Gas fireplace, Hardwood staircase to basement, Sodded yard & concrete driveway. HST included in price, provided Buyer qualifies for the rebate and assigns it to the Builder on closing. Prices subject to change without notice. (id:49218)
| MLS® Number | X12232570 |
| Property Type | Single Family |
| Community Name | Saugeen Shores |
| Amenities Near By | Schools, Park |
| Equipment Type | Water Heater - Tankless |
| Features | Flat Site |
| Parking Space Total | 2 |
| Rental Equipment Type | Water Heater - Tankless |
| Structure | Deck, Porch |
| Bathroom Total | 3 |
| Bedrooms Above Ground | 2 |
| Bedrooms Below Ground | 2 |
| Bedrooms Total | 4 |
| Age | New Building |
| Amenities | Fireplace(s) |
| Appliances | Garage Door Opener Remote(s), Water Heater - Tankless, Water Meter |
| Architectural Style | Bungalow |
| Basement Development | Partially Finished |
| Basement Type | N/a (partially Finished) |
| Construction Style Attachment | Attached |
| Cooling Type | Central Air Conditioning, Air Exchanger |
| Exterior Finish | Stone, Vinyl Siding |
| Fire Protection | Smoke Detectors |
| Fireplace Present | Yes |
| Fireplace Total | 1 |
| Flooring Type | Hardwood, Concrete, Tile |
| Foundation Type | Poured Concrete |
| Heating Fuel | Natural Gas |
| Heating Type | Forced Air |
| Stories Total | 1 |
| Size Interior | 1100 - 1500 Sqft |
| Type | Row / Townhouse |
| Utility Water | Municipal Water |
| Attached Garage | |
| Garage |
| Acreage | No |
| Land Amenities | Schools, Park |
| Sewer | Sanitary Sewer |
| Size Depth | 108 Ft |
| Size Frontage | 30 Ft ,7 In |
| Size Irregular | 30.6 X 108 Ft |
| Size Total Text | 30.6 X 108 Ft |
| Level | Type | Length | Width | Dimensions |
|---|---|---|---|---|
| Basement | Utility Room | 4.9 m | 4.32 m | 4.9 m x 4.32 m |
| Basement | Bedroom 3 | 3.51 m | 3.53 m | 3.51 m x 3.53 m |
| Basement | Bedroom 4 | 3.56 m | 3.71 m | 3.56 m x 3.71 m |
| Basement | Family Room | 7.39 m | 5.16 m | 7.39 m x 5.16 m |
| Main Level | Foyer | 1.52 m | 3.12 m | 1.52 m x 3.12 m |
| Main Level | Bedroom 2 | 3.05 m | 3.05 m | 3.05 m x 3.05 m |
| Main Level | Mud Room | 2.13 m | 3.12 m | 2.13 m x 3.12 m |
| Main Level | Dining Room | 4.75 m | 3.63 m | 4.75 m x 3.63 m |
| Main Level | Kitchen | 3.63 m | 3.84 m | 3.63 m x 3.84 m |
| Main Level | Living Room | 3.73 m | 4.27 m | 3.73 m x 4.27 m |
| Main Level | Primary Bedroom | 3.76 m | 4.27 m | 3.76 m x 4.27 m |
| Cable | Available |
| Electricity | Installed |
| Sewer | Installed |
https://www.realtor.ca/real-estate/28493027/411-ivings-drive-saugeen-shores-saugeen-shores
Contact us for more information
Hayden Duplantis
Salesperson
(519) 389-4600
(519) 389-4618
www.remaxlandexchange.ca/
Debbie Duplantis
Broker
(519) 389-4600
(519) 389-4618
www.remaxlandexchange.ca/