• Looking for a new home? Go To Joe!

Compare Listings


LOADING

23 - 409 Joseph Street Saugeen Shores, Ontario N0H 2C0

3 Bedroom 3 Bathroom 1200 - 1399 sqft
Central Air Conditioning, Air Exchanger Forced Air

$504,900

Maintenance, Common Area Maintenance, Insurance, Parking

$360 Monthly

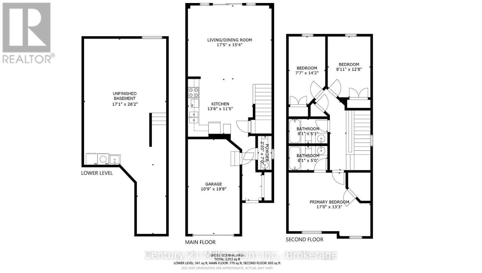
Welcome to Number 23 at 409 Joseph St.-a bright, well-kept 2-storey townhouse condominium offering 3 bedrooms, 3 baths, and three compelling reasons to make it yours. First, it's freshly painted in neutral tones with updated carpet, making it truly move-in ready. Second, it's vacant, allowing for immediate or flexible possession. Third, the home faces west and backs east toward Bruce St., offering peaceful views of the open greenspace across the road. The open kitchen provides ample room for a future island-ideal for meal prep, entertaining, or casual dining. The living room offers versatile space for relaxing or hosting, with views of the rear patio and the expansive greenspace of Northport School, the Biener ball diamonds, and the Saugeen Shores Cricket Ground. A 2-piece powder room, front foyer and closet complete the main level. Tile flooring spans the entry and kitchen, with updated carpet in the living room and on the stairs. Upstairs, the spacious primary suite features a walk-in closet and 4-piece ensuite. Two additional bedrooms and a full bath complete the upper level. The unspoiled basement includes laundry, rough-in for a future full bath, and plenty of open space-perfect for a family room, home theatre, gym, and storage. Low condo fees cover lawn care, gardens, and exterior maintenance. The built-in single-car garage provides ample storage, plus you have an exclusive parking space out front. Garbage and recycling areas, along with visitor parking, are conveniently close to the unit. Located in a family-friendly neighbourhood near schools, shopping, and just minutes from the sparkling shores of Lake Huron, this home offers comfort, convenience, and excellent value. (id:49218)

Property Details

MLS® Number X12668872
Property Type Single Family
Community Name Saugeen Shores
Amenities Near By Park, Schools
Community Features Pets Allowed With Restrictions
Equipment Type Water Heater
Parking Space Total 2
Rental Equipment Type Water Heater

Building

Bathroom Total 3
Bedrooms Above Ground 3
Bedrooms Total 3
Age 6 To 10 Years
Appliances Garage Door Opener Remote(s), Water Meter, Dishwasher, Dryer, Stove, Washer, Refrigerator
Basement Development Unfinished
Basement Type N/a (unfinished)
Cooling Type Central Air Conditioning, Air Exchanger
Exterior Finish Brick
Flooring Type Tile
Half Bath Total 1
Heating Fuel Natural Gas
Heating Type Forced Air
Stories Total 2
Size Interior 1200 - 1399 Sqft
Type Row / Townhouse

Parking

Garage

Land

Acreage No
Land Amenities Park, Schools

Rooms

Level Type Dimensions
Second Level Primary Bedroom 3.73 m x 5.18 m
Second Level Bathroom 1.52 m x 2.54 m
Second Level Bedroom 2 4.19 m x 2.41 m
Second Level Bedroom 3 3.81 m x 2.74 m
Second Level Bathroom 2.51 m x 1.52 m
Lower Level Laundry Room 3.55 m x 4.03 m
Main Level Foyer 4.49 m x 1.21 m
Main Level Kitchen 3.58 m x 4.09 m
Main Level Living Room 4.39 m x 5.18 m
Main Level Bathroom 2.03 m x 0.91 m

https://www.realtor.ca/real-estate/29221238/23-409-joseph-street-saugeen-shores-saugeen-shores

Interested?

Contact us for more information


Generating Captcha

Scott Saunders
Broker

(519) 372-7190
www.saugeenteam.com/
www.facebook.com/SaugeenTeam
twitter.com/SaugeenTeam

Century 21 Millennium Inc.
41 Hurontario Street
Collingwood, Ontario L9Y 2L7

(705) 445-5640
(705) 445-7810
www.c21m.ca/

Samantha Trumbley
Salesperson

(519) 270-3958
saugeenteam.com/
www.facebook.com/samanthatrumbley

Century 21 Millennium Inc.
41 Hurontario Street
Collingwood, Ontario L9Y 2L7

(705) 445-5640
(705) 445-7810
www.c21m.ca/

Your Favourites

 

No Favourites Found